首页
新房
资讯
地图找房
登录
/
注册
您的位置:
首页
>
新房
>
湖畔云庐
>
户型详细
湖畔云庐
在售
宜居生态
关注
楼盘主页
在售户型
楼盘动态
楼盘相册
楼盘详情
历史价格
周边配套
全部(
0
)
0室(
4
)
←
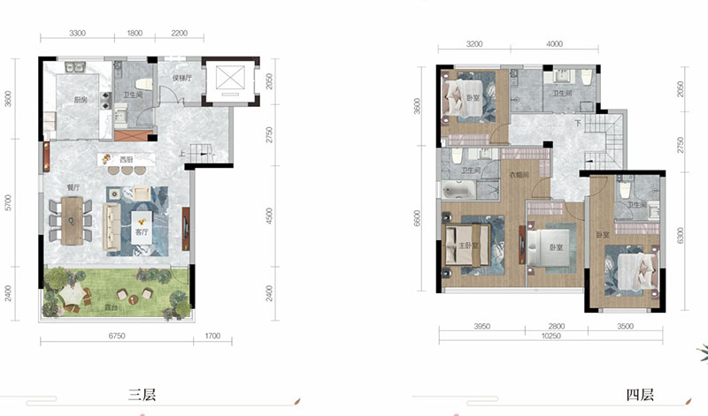
0室0厅0卫
166.00㎡
0室0厅0卫
165.00㎡
0室0厅0卫
171.00㎡
0室0厅0卫
171.00㎡
→
均价:
待定
元/㎡
居室:
0室0厅0卫0厨
面积:
165.00㎡
购房热线
4000736088转2237