您的位置: 首页 > 新房 > 皇廷凤凰城

皇廷凤凰城

现房      

皇廷凤凰城

3880元/㎡ 备注:均价仅供参考!

报价时间:2025-12-06,价格有效期:30天,该价格为参考价格,具体以开发商为准!

楼盘地址 : 嘉禾大道与横十八路交汇处
开盘时间 : 2020年09月19日
交房时间 : 2022年12月15日
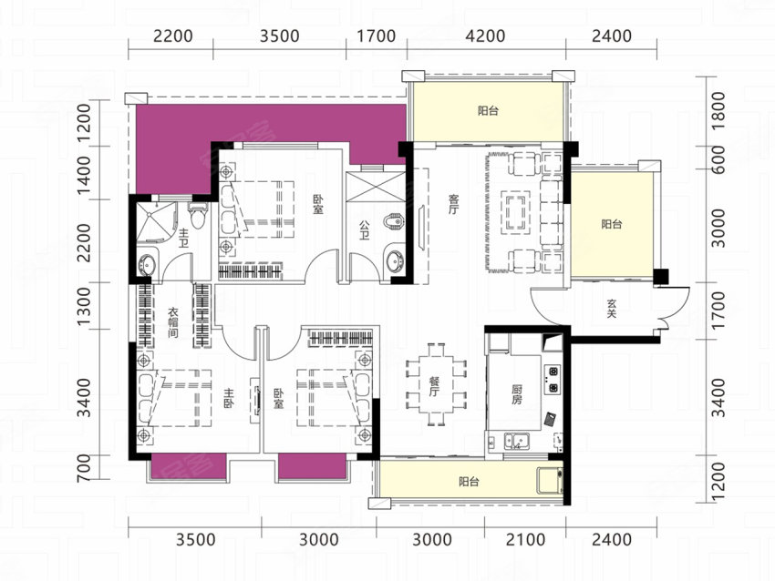
主力户型 : 0室0厅(128.00㎡) |3室2厅(125.00㎡) |3室2厅(121.00㎡) |3室2厅(127.00㎡) |3室2厅(125.00㎡)
开 发 商 : 嘉禾县力天房地产开发有限公司
苦苦寻找楼盘信息?不如一个电话全部搞定

4000-736-0882102

楼盘详情

占地面积: 约58.8亩 建筑面积: 约20万㎡ 开发商: 嘉禾县力天房地产开发有限公司
计划户数: 1028 开盘时间: 2020年09月19日 交房时间: 2022年12月15日
产权年限: 住宅70年,商业40年 建筑类型: 暂无资料 车位情况: 905
物业类型: 暂无资料 物业公司: 暂无资料 项目地址: 嘉禾大道与横十八路交汇处
物业费用: 暂无资料 售楼地址: 嘉禾县嘉禾大道与嘉滨路交汇处(嘉滨湖斜对面) 预售证号: 嘉房售许字(2020)第0037号

楼盘动态

查看更多
  • 楼盘动态

    皇廷凤凰城位于嘉禾大道与横十八路交汇处,项目总占地面积58.8亩,建筑面积约20万㎡,其中住宅总共7栋,由4栋25层和3栋26层的中式风格建筑组成,共计约1028户。小区自带商业配套有15000㎡和905个停车位(车位配比近1:1),小区中央自带约10000㎡中心景观花园。小区内部配备有环形跑道、篮球场、网球场、羽毛球场,打造舒适生活,高品质小区!

时间轴

  • 开盘日期:2020年09月19日

  • 交房日期:2022年12月15日

  • 1#A户型

    在售

    1#A户型 3室2厅2卫1厨

    建筑面积125.00㎡

  • 1#A户型

    在售

    1#A户型 4室2厅2卫1厨

    建筑面积145.00㎡

  • 1#B户型

    在售

    1#B户型 3室2厅2卫1厨

    建筑面积121.00㎡

  • 2#A户型

    在售

    2#A户型 3室2厅2卫1厨

    建筑面积127.00㎡

  • 5#A户型

    在售

    5#A户型 4室2厅2卫1厨

    建筑面积145.00㎡

  • 5#B户型

    在售

    5#B户型 4室2厅2卫1厨

    建筑面积143.00㎡

  • 5#C户型

    在售

    5#C户型 3室2厅2卫1厨

    建筑面积125.00㎡

  • 6#8#B户型

    在售

    6#8#B户型 3室2厅2卫1厨

    建筑面积125.00㎡

  • 6#A户型

    在售

    6#A户型 4室2厅2卫1厨

    建筑面积147.00㎡

  • 7#F1户型

    在售

    7#F1户型 3室2厅2卫1厨

    建筑面积128.00㎡

楼盘介绍

皇廷凤凰城位于嘉禾大道与横十八路交汇处,项目总占地面积58.8亩,建筑面积约20万㎡,其中住宅总共7栋,由4栋25层和3栋26层的中式风格建筑组成,共计约1028户。小区自带商业配套有15000㎡和905个停车位(车位配比近1:1),小区中央自带约10000㎡中心景观花园。小区内部配备有环形跑道、篮球场、网球场、羽毛球场,打造舒适生活,高品质小区!

咨询置业顾问

网站声明 : 本网站宗旨为广大用户免费提供信息服务,数据来源互联网,本站不声明或保证所展示的信息准确性和完整性,仅供参考使用。购房者参考本站信息,进行房屋交易所造成的任何后果与本网站无关。网站所提户型面积均指建筑面积。