您的位置: 首页 > 新房 > 梧桐庄园

梧桐庄园

现房       宜居生态

梧桐庄园

6000元/㎡ 备注:均价仅供参考!

报价时间:2025-12-05,价格有效期:30天,该价格为参考价格,具体以开发商为准!

楼盘地址 : 珠晖区衡州大道东48号(师院旁、酃湖公园畔)
开盘时间 : 2018年08月31日
交房时间 : 2023年05月30日四期55/56/57/58/60栋
主力户型 : 2室2厅(118.00㎡) |2室2厅(124.00㎡) |3室2厅(133.00㎡) |4室2厅(135.00㎡) |4室2厅(143.00㎡)
开 发 商 : 湖南中库投资有限公司、美的置业
苦苦寻找楼盘信息?不如一个电话全部搞定

4000-736-0881102

楼盘详情

占地面积: 约450亩 建筑面积: 约75万方 开发商: 湖南中库投资有限公司、美的置业
计划户数: 4758 开盘时间: 2018年08月31日 交房时间: 2023年05月30日四期55/56/57/58/60栋
产权年限: 住宅70年,商业40年 建筑类型: 暂无资料 车位情况: 5020
物业类型: 暂无资料 物业公司: 广东美的物业管理股份有限公司衡阳分公司 项目地址: 珠晖区衡州大道东48号(师院旁、酃湖公园畔)
物业费用: 高层住宅1.8元/㎡,洋房1.8元/㎡,公寓1.8 元 售楼地址: 珠晖区衡州大道东48号(师院旁、酃湖公园畔) 预售证号: 衡预许字(2021)第117号

楼盘动态

查看更多
  • 楼盘动态

    衡阳美的·梧桐庄园产品涵盖电梯花园洋房、小高层、品质高层、风情街区等多种物业形态,项目毗邻衡阳东站,扼守衡州大道、蒋酃路、酃湖大道三大城市主干道。作为衡阳东西贯通城市大道——衡州大道,往来高铁站与城市各区;更有9条公交路线停经项目,旺盛的人流、物流加速了商业配套的完善和商圈经营氛围的成熟。

  • 楼盘动态

    美的梧桐庄园位于珠晖区衡州大道东48号(师院旁、酃湖公园畔),项目总占地约450亩,总建筑面积约75万方。项目涵盖电梯花园洋房、小高层、品质高层、风情街区等多种物业形态,打造衡阳低密度法式城邦。

时间轴

  • 开盘日期:2018年08月31日

  • 交房日期:2023年05月30日

  • 36#39#GC户型

    在售

    36#39#GC户型 4室2厅2卫1厨

    建筑面积135.00㎡

  • 36#GA+户型

    在售

    36#GA+户型 5室2厅2卫1厨

    建筑面积143.00㎡

  • 53#68#A户型

    在售

    53#68#A户型 3室2厅2卫1厨

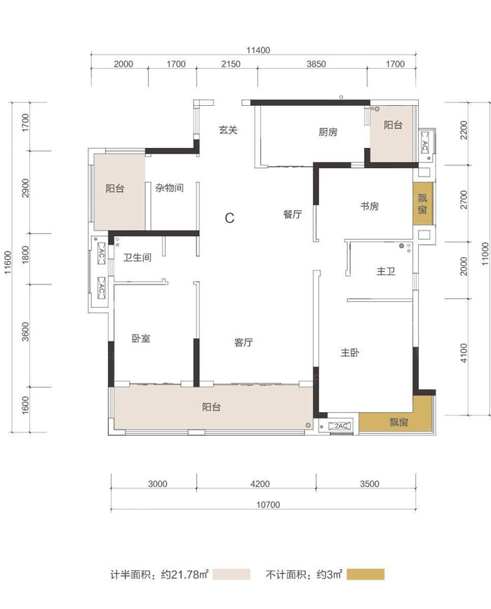
    建筑面积133.00㎡

  • 53#68#B户型

    在售

    53#68#B户型 2室2厅2卫1厨

    建筑面积118.00㎡

  • 68#A户型

    在售

    68#A户型 2室2厅2卫1厨

    建筑面积124.00㎡

  • XJ户型

    在售

    XJ户型 4室2厅2卫1厨

    建筑面积143.00㎡

楼盘介绍

美的梧桐庄园位于珠晖区衡州大道东48号(师院旁、酃湖公园畔),项目总占地约450亩,总建筑面积约75万方,总规划4758户,车位1:1.1,采用的是人车分流的人性化设计,项目容积率仅2.3。项目涵盖电梯花园洋房、小高层、品质高层、风情街区等多种物业形态,打造衡阳低密度法式城邦,开发商:湖南中库投资有限公司、美的置业。

咨询置业顾问

网站声明 : 本网站宗旨为广大用户免费提供信息服务,数据来源互联网,本站不声明或保证所展示的信息准确性和完整性,仅供参考使用。购房者参考本站信息,进行房屋交易所造成的任何后果与本网站无关。网站所提户型面积均指建筑面积。