您的位置: 首页 > 新房 > 智慧新城

智慧新城

现房       宜居生态

智慧新城

5500元/㎡ 备注:均价仅供参考!

报价时间:2025-12-06,价格有效期:30天,该价格为参考价格,具体以开发商为准!

楼盘地址 : 岳阳大道与枣子山路交汇处(弘毅中学斜对面)
开盘时间 : 2019年08月31日
交房时间 : 2021年10月28日
主力户型 : 3室2厅(122.19㎡) |4室2厅(146.30㎡) |4室2厅(146.04㎡)
开 发 商 : 岳阳数博置业有限公司
苦苦寻找楼盘信息?不如一个电话全部搞定

4000-736-0880132

楼盘详情

占地面积: 145亩 建筑面积: 15万㎡ 开发商: 岳阳数博置业有限公司
计划户数: 600 开盘时间: 2019年08月31日 交房时间: 2021年10月28日
产权年限: 住宅70年,商业40年 建筑类型: 暂无资料 车位情况: 758
物业类型: 暂无资料 物业公司: 新知物业 项目地址: 岳阳大道与枣子山路交汇处(弘毅中学斜对面)
物业费用: 1.2 售楼地址: 岳阳大道与枣子山路交汇处(弘毅中学斜对面) 预售证号: 岳建预(2021)第063号

楼盘动态

查看更多
  • 楼盘动态

    一个楼盘配套是否完善关系到业主日后生活质量,楼盘配套设施主要是小区和周边的生活配套设施,包括交通、医疗、教育、商业等,下面我们来看看岳阳智慧新城楼盘周边配套情况怎么样?

  • 楼盘动态

    岳阳智慧新城位于岳阳大道与枣子山路交汇处(弘毅中学斜对面),开发商:岳阳数博置业有限公司

时间轴

  • 开盘日期:2019年08月31日

  • 交房日期:2021年10月28日

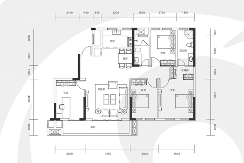
  • A户型

    在售

    A户型 3室2厅2卫1厨

    建筑面积122.19㎡

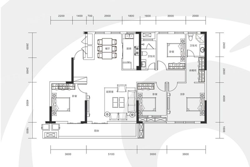
  • B/C户型

    在售

    B/C户型 4室2厅2卫1厨

    建筑面积146.30㎡

  • D户型

    在售

    D户型 4室2厅2卫1厨

    建筑面积146.04㎡

楼盘介绍

岳阳智慧新城占地145亩,建筑面积约15万㎡,项目分南北两大地块,北为数博环球工业园(工业用地开发项目),南地块为数博环球智能产业园(产业配套商住用地开发),由岳阳数博置业有限公司开发建设,总建筑面积为97897平方米,主要建设内容为写字楼、公寓住宅、商业建筑等。

岳阳智慧新城南地块容积率:3.0,绿化率:37%,规划户数:600户,物业管理费:1.2元/m²/月,物业公司:新知物业,车位数:758,车位比:1:1.2。

咨询置业顾问

网站声明 : 本网站宗旨为广大用户免费提供信息服务,数据来源互联网,本站不声明或保证所展示的信息准确性和完整性,仅供参考使用。购房者参考本站信息,进行房屋交易所造成的任何后果与本网站无关。网站所提户型面积均指建筑面积。