您的位置: 首页 > 新房 > 天伦东湖院

天伦东湖院

在售       宜居生态

天伦东湖院

待定元/㎡ 备注:均价仅供参考!

报价时间:2025-12-05,价格有效期:30天,该价格为参考价格,具体以开发商为准!

楼盘地址 : 岳阳市得胜北路与枫桥湖路交汇处
开盘时间 : 2025年01月19日
交房时间 : 2026年06月30日
主力户型 : 4室2厅(125.00㎡) |4室2厅(148.00㎡) |5室2厅(173.00㎡) |6室2厅(281.00㎡) |6室2厅(256.00㎡)
开 发 商 : 岳阳天悦房地产开发有限公司
苦苦寻找楼盘信息?不如一个电话全部搞定

4000-736-0880161

楼盘详情

占地面积: 约103亩 建筑面积: 约16万平米 开发商: 岳阳天悦房地产开发有限公司
计划户数: 873 开盘时间: 2025年01月19日 交房时间: 2026年06月30日
产权年限: 住宅70年,商业40年 建筑类型: 暂无资料 车位情况: 907
物业类型: 暂无资料 物业公司: 暂无资料 项目地址: 岳阳市得胜北路与枫桥湖路交汇处
物业费用: 暂无资料 售楼地址: 岳阳市得胜北路与枫桥湖路交汇处 预售证号: 岳建预(2025)第0005号

楼盘动态

查看更多
  • 楼盘动态

    岳阳天伦东湖院项目位于东风湖畔,得胜北路以西,毗邻岳阳楼景区、洞庭湖,出门即东风湖生态公园等自然与人文景观资源,离繁华步行街一路之隔。项目总占地面积103亩,总户数:917户(住宅829户、商业88户),容积率1.70,绿化率35%。产品涵盖:第四代复式、第四代复式大平层及叠墅。天伦东湖院作为天伦改善项目力作,无论是从地段、户型以及配套等,值得每一位购房者亲临鉴赏。

  • 楼盘动态

    在岳阳东风湖畔,天伦东湖院宛如一颗璀璨的明珠。天伦东湖院位于得胜北路与枫桥湖路交汇处,由岳阳天悦房地产开发有限公司开发建设。

时间轴

  • 开盘日期:2025年01月19日

  • 交房日期:2026年06月30日

  • B1户型

    在售

    B1户型 4室2厅2卫1厨

    建筑面积125.00㎡

  • C户型

    在售

    C户型 4室2厅3卫1厨

    建筑面积148.00㎡

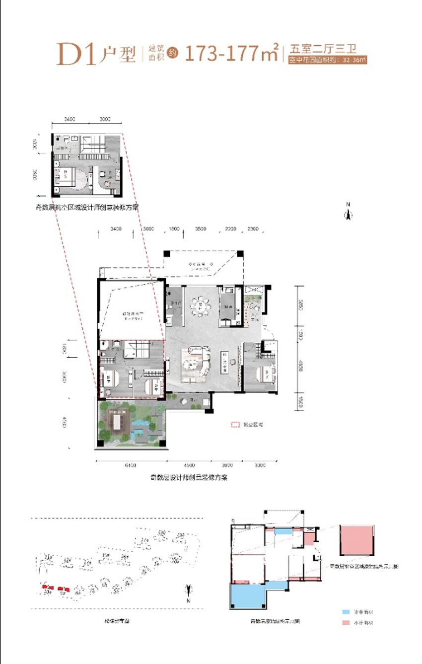
  • D1户型

    在售

    D1户型 5室2厅3卫1厨

    建筑面积173.00㎡

  • D2户型

    在售

    D2户型 6室2厅4卫1厨

    建筑面积281.00㎡

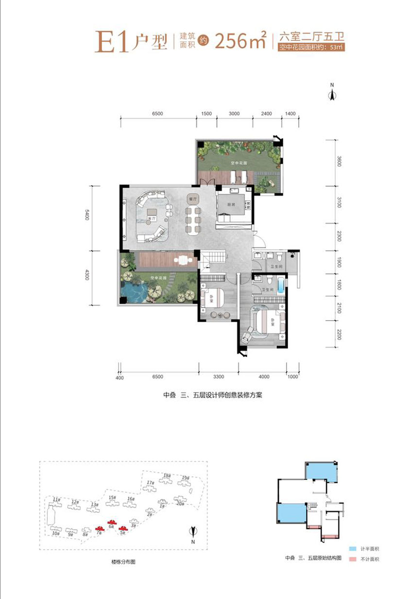
  • E1户型

    在售

    E1户型 6室2厅5卫1厨

    建筑面积256.00㎡

楼盘介绍

岳阳天伦东湖院位于得胜北路与枫桥湖路交汇处,项目占地面积约103亩,建筑面积约16万平方米,容积率1.7,绿地率35%,规划总户数873套(住宅829套|商铺44套),机动车停车位:907个,项目规划18栋住宅,由岳阳天悦房地产开发有限公司开发建设。

咨询置业顾问

网站声明 : 本网站宗旨为广大用户免费提供信息服务,数据来源互联网,本站不声明或保证所展示的信息准确性和完整性,仅供参考使用。购房者参考本站信息,进行房屋交易所造成的任何后果与本网站无关。网站所提户型面积均指建筑面积。